Australia

# Sold CONTACT AGENT

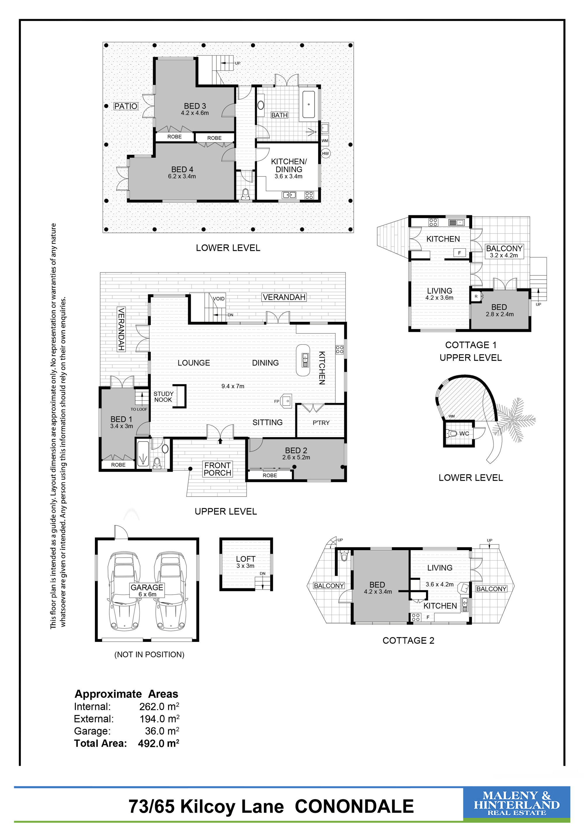
73/65 Kilcoy Lane, Conondale, Qld 4552

# Location

Description

CHARMING ECO VILLAGE HOME WITH TWO SEPARATE CABINS Nestled in the eco village of Crystal Waters, just 24 minutes to the town of Maleny and 28 minutes to Kenilworth, this unique chamferboard and rendered brick home is set in a peaceful bush location and offers the ultimate in lifestyle, peace, and tranquillity. Set over two levels, the main house offers the opportunity for dual living, blended family living or the perfect home and workspace for yourself and clients; the entire property itself would also be ideal as a retreat or conference space.

A very clever combination of decks and terraces offer gorgeous outlooks and views over your parcel of land and the surrounding landscape. Cool breezes are on offer as you escape the everyday hustle and bustle.

Just over an acre of land boasts wonderful space and scope to build on the existing gardens and landscaping; create your vision of a sustainable lifestyle. Mature trees and an abundance of fruit and nut trees will delight: Blood Orange, Walnut, Lemon, Olive, Banana, Avocado, Peach, Mandarin, Custard Apple, Mulberry, Mango and lush fernery.

Main House Upstairs: • 2 bedroom and one-bathroom

• High ceilings and pitched roof • Open plan kitchen, dining and living area; huge walk-in pantry, timber benchtops, gas cooking and dishwasher • Gorgeous loft space for the creatives, yogis or the ultimate cubby for the kids • Nectre Bakers Oven- fireplace with separate oven; an enviable sustainability feature- food cooking while heating your home • Indoor and outdoor spaces seamlessly flow

• Delightful Blackall Range views and breezes from the covered deck

• Delightful window nook for lazy days or extra guest bed • Polished floorboards • Separate study nook • Reverse cycle air conditioning in living area • Ceiling fans in the living area and bedrooms • Solar power to the entire property • Chicken pen and garden shed • 6 x 6 workshop and garage

Main House Downstairs: • Create dual living, a work-from home-space or welcome clients • Two generous-sized bedrooms; one with a window seat • Large bathroom space with walk-in shower and sunken tub • Kitchenette and dining space

Two Cabins: • Currently tenanted; attractive passive income • One bedroom and separate bathroom • Open plan kitchen, living space • Verandahs and lovely outlooks

About the Crystal Waters Community: • The opportunity to be part of an inclusive and welcoming community of people with a knowledge base of fruit and vegetable growing, horticulture, music and the arts. • Some of Australia's best known permaculture teachers are residents. • Monthly market held on the village green. • Great natural swimming sites- the Big Dam with pontoon and Pebble Beach on the Mary River. • Many resident artists and musicians offer impromptu music events and art exhibitions • Ikigai Café open 7 days a week.

• 14kms to the Conondale General store and 24kms to the vibrant town of Maleny. • No dogs or cats are allowed, but the trade-off is the abundant wildlife on your doorstep including kangaroos, wallabies and amazing birdlife. • High-speed internet. • Conondale State Primary School bus collects students each day, and the connection for the Maleny High School bus is a short drive away.

Offering the ultimate change of lifestyle for the entire family, this property has to be inspected to appreciate everything on offer- book your private inspection with exclusive agent Rodney Millett today.

Crystal Waters Eco Village is a private community, and inspections are strictly by appointment only.

** All information contained herein is gathered from sources we believe to be reliable. However, we cannot guarantee its accuracy and interested persons should rely on their own enquiries.

*** This property is being marketed without a price and therefore a price guide cannot be provided. The website may have filtered the property into a price bracket for website functionality purposes. Please contact Agent for further guidance on price.

View More #

Floor Plans

Location

  • Contact the agency

    To request an inspection

  • # Call # Email

Rodney Millett

Agent Name

# Report Listing

Looking for a property?

  • Top listings
  • Investment
  • Development
  • Personal home
  • Price reports
  • Suburb reports

Do you own a property?

  • Place a free listing
  • Services for private advertisers
  • Guide to selling your home
  • Insurance
  • Improve the photos of your listing
  • Value your property for free

Are you a real estate proffesional?

  • Publish your agencies properties
  • Already a client? Log into your account
  • Advertising on Australian Real Estate
  • Australian Real Estate data technology for property insights
  • Real Estate courses